ホーム 施設のご案内 入居について 体験入居 Q&A お問い合わせ
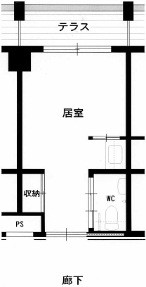
居室
居室はテラス、洗面台、トイレを備え付けています。
18 ㎡以上の広さを確保していますのでゆったりと過ごすことが出来ます。
テラスからは外の景色を一望できます。
(※写真をクリックすると施設内の写真が拡大されます)
居室1
居室1

居室3
居室3

トイレ
トイレ
居室2
居室2

洗面所
洗面所

ホーム / 施設のご案内 / 入居について / 体験入居 / Q&A / お問い合わせ
Copyright 2013 介護付有料老人ホーム ながきの杜